苏州 切换城市

请选择您所在的城市:

    热门
    城市

    头条资讯

    发布投稿
    客服热线4001-111-111
    广告

    三里屯一号 坐拥京城繁华地段,入云端之际,独享三里屯静谧之境

    200-01-01

    阅读:0

    评论:0

    举报

    三里屯一号,坐拥京城最繁华地段,入云端之际,独享三里屯静谧之境。CCD以全球顶级豪宅理念见解,将百年经典品牌元素融入空间设计,打造了Armani、Aston Martin、Bottega Veneta、Fendi、 Versace风格的国际服务式豪宅,致敬经典。

    三里屯一号 坐拥京城繁华地段,入云端之际,独享三里屯静谧之境


    150高的地标性建筑,270度的绝佳观景让远眺CBD的繁华和紫禁城的雄伟壮阔成为生活日常。44套豪华精装公寓,用继承传统来定义现代不必刻意炫耀,自然引人注目。戴德梁行作为世界顶尖的物业顾问之一提供24小时精细入微的数十项致密服务,尊享洲际酒店全天候服务,畅享五星级配套服务设施-宴会、餐饮、健身、SPA。双管家的齐力,把服务做成艺术,使奢美成为寻常让每一位进入大堂的主人都一步归家。

    三里屯一号 坐拥京城繁华地段,入云端之际,独享三里屯静谧之境


    安防系统:24小时保安值守,电梯梯控系统;地下车库保安值守,车牌识别进入;室内视频对讲防盗系统。

    项目位置:北京市朝阳区三里屯通盈中心洲际酒店

    三里屯一号 坐拥京城繁华地段,入云端之际,独享三里屯静谧之境


    建筑立项:70年

    开发商:北京通盈房地产开发有限公司

    拿地时间:2006年

    建成时间:外立面2016年建成 交房时间:现房

    三里屯一号 坐拥京城繁华地段,入云端之际,独享三里屯静谧之境


    项目信息

    开发商:北京通盈房地产开发有限公司

    物业公司:戴德梁行加五星级酒店双重服务

    是否旧楼改造:否 是否可以贷款:否

    是否可以落户:北京户口可以落

    三里屯一号 坐拥京城繁华地段,入云端之际,独享三里屯静谧之境


    建筑形式:塔楼高150米,地下4层,地上36层

    功能区分布:B1-6层为商业,7-22层为洲际酒店,24-36层为住宅

    建筑面积:24000平 交付标准:精装

    装修设计:平层凯丽赫本、香港CCD;复式阿玛尼、芬迪、阿斯顿马丁(BV、范思哲这两套还在装修中)

    三里屯一号 坐拥京城繁华地段,入云端之际,独享三里屯静谧之境


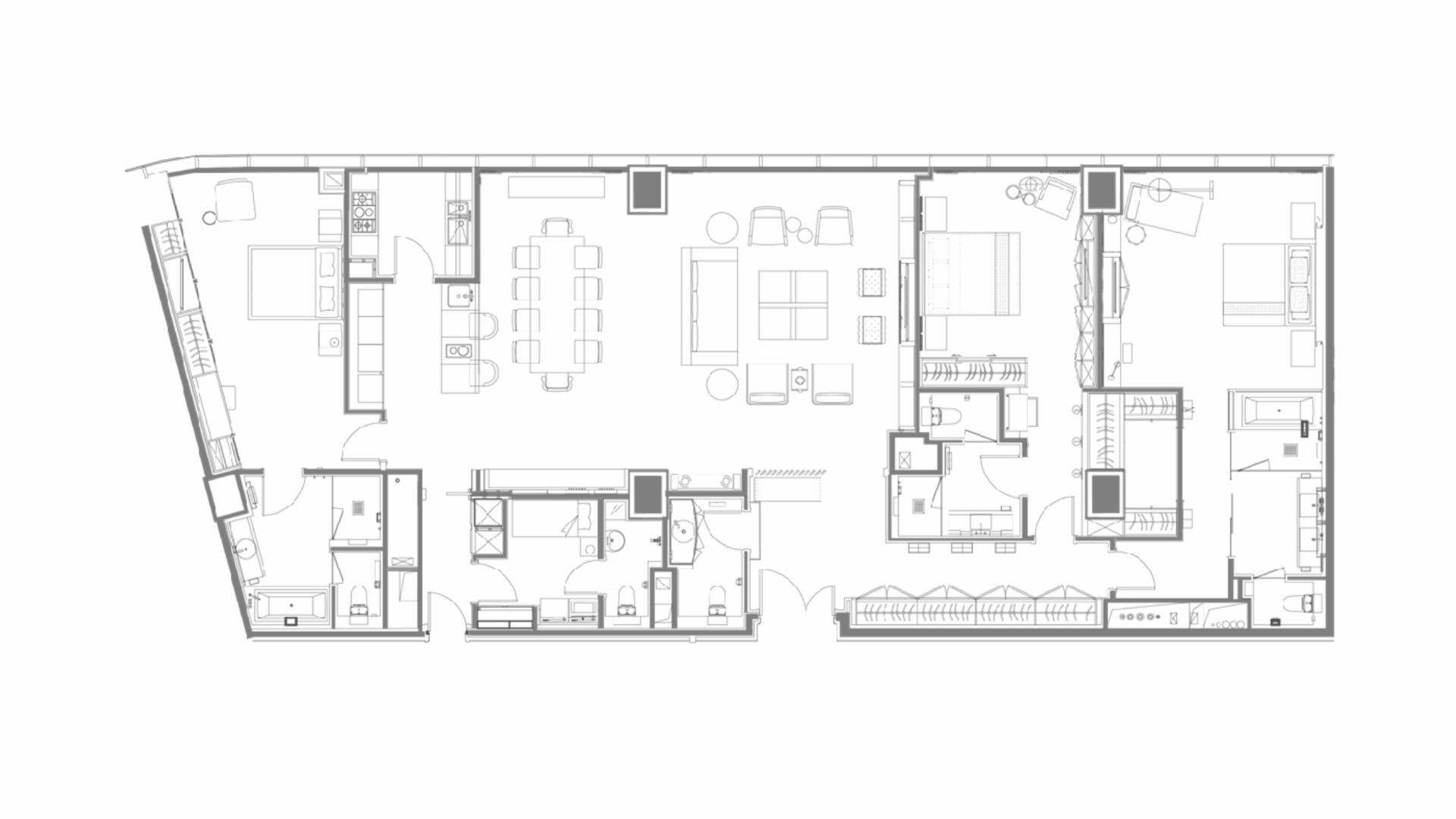
    得房率:69% 每层户数:5梯4户

    层高:平层3.8、复式3.6(装修完平层2.9米,装修完复式2.7米)

    车位配比:每户可租2个,每月2000元

    是否有预售证:有证可网签(有外销证,可以接受外汇)

    供暖采暖:市政、地暖、民水、民电、带燃气

    总户数:共44套

    三里屯一号 坐拥京城繁华地段,入云端之际,独享三里屯静谧之境


    特殊户型272平米两居无燃气4900万仅此一套

    三里屯一号 坐拥京城繁华地段,入云端之际,独享三里屯静谧之境


    A500平米户型,东北向三居,共9套,在售7套,总价区间9400万-1.2亿

    三里屯一号 坐拥京城繁华地段,入云端之际,独享三里屯静谧之境


    B377平米户型,东向三居,共9套,在售5套,总价区间6900万-9900万

    三里屯一号 坐拥京城繁华地段,入云端之际,独享三里屯静谧之境


    C360平米户型,西向两居,共9套,在售8套,总价区间6600万-9200万

    三里屯一号 坐拥京城繁华地段,入云端之际,独享三里屯静谧之境


    D650平米户型,东南向三居,共9套,在售5套,总价区间1.5亿-1.8亿

    三里屯一号 坐拥京城繁华地段,入云端之际,独享三里屯静谧之境


    复式共8套在售5套,BV679平米、阿斯顿马丁723平米、阿玛尼754平米、芬迪1004平米、范思哲1000平米 总价区间2.2亿-3.3亿

    三里屯一号 坐拥京城繁华地段,入云端之际,独享三里屯静谧之境


    三里屯一号 坐拥京城繁华地段,入云端之际,独享三里屯静谧之境


    楼层数:共计38层,24-36层 单价区间:18-35万/每平米

    均价:26.5万 总价区间:4900万-3.5亿

    三里屯一号 坐拥京城繁华地段,入云端之际,独享三里屯静谧之境

    这套以 Aston Martin 命名的户型,通过面积720平方米的超大空间,演绎出了别样的艺术氛围。

    三里屯一号 坐拥京城繁华地段,入云端之际,独享三里屯静谧之境


    流线型线条,纯粹的空间结构和在细节上的考究,是设计师对Aston Martin的精髓领会。线条立面连至天花,家具的每一处动线皆是首尾呼应,空间中处处是对流线的着墨讲究。

    三里屯一号 坐拥京城繁华地段,入云端之际,独享三里屯静谧之境


    三里屯一号 坐拥京城繁华地段,入云端之际,独享三里屯静谧之境


    环绕挑空客厅的天花结构,车窗线条般流畅的落地灯,将客厅化车舱的无限延伸,而空间的支撑结构与落地灯一同勾勒出车窗外的城市风景。

    三里屯一号 坐拥京城繁华地段,入云端之际,独享三里屯静谧之境


    三里屯一号 坐拥京城繁华地段,入云端之际,独享三里屯静谧之境


    黑与白的碰撞,以一种难以调和却又达到极致后相互融合的特殊存在。黑白成为餐厅的主色调,线条旋绕的灯具勾勒超跑的赛道,顿折之间凝结力量之美。

    三里屯一号 坐拥京城繁华地段,入云端之际,独享三里屯静谧之境


    大面积的玻璃将室内沐浴在白日阳光之下,一道道光影的转动在空间中留下时光的印记。

    三里屯一号 坐拥京城繁华地段,入云端之际,独享三里屯静谧之境


    豪宅项目没有含4的楼层所以标识房号从25层开始,项目南看国贸所有建筑,北看盘古望京,西侧可近观演唱会看西山,东看燕莎.

    三里屯一号 坐拥京城繁华地段,入云端之际,独享三里屯静谧之境


    三里屯一号 坐拥京城繁华地段,入云端之际,独享三里屯静谧之境


    主卧位于客厅上空楼层,大面积的落地玻璃窗让这里同样享有270度绝佳视野,可以感受京城繁华地段日夜交替的惬意氛围。

    三里屯一号 坐拥京城繁华地段,入云端之际,独享三里屯静谧之境


    旋转楼梯宛如黑白琴键,黑色金属线条勾勒出跑车的律动,透明玻璃扶手和白色石阶,化繁为简,形成一种彩色过滤,最终回归本质:将空间的明暗和线条交织,光影细致入微地描述着故事,构筑富有想象力的空间。

    三里屯一号 坐拥京城繁华地段,入云端之际,独享三里屯静谧之境


    三里屯一号 坐拥京城繁华地段,入云端之际,独享三里屯静谧之境


    在卧室里,以开敞而透明的边界拥抱三里屯天际,目之所及,视线扫过现代都市楼宇;环宇之间,是青天朗朗,尊享三里屯凌云之境。

    三里屯一号 坐拥京城繁华地段,入云端之际,独享三里屯静谧之境


    三里屯一号 坐拥京城繁华地段,入云端之际,独享三里屯静谧之境


    44套豪华精装公寓,用继承传统来定义现代不必刻意炫耀,自然引人注目。
    但以奢侈品牌命名的限量版户型,每款仅有一套,绝对独一无二。由全球酒店室内设计排名Top3的香港郑中设计事务所(CCD)操刀,打造而成的北京三里屯一号Fendi公寓设计。

    三里屯一号 坐拥京城繁华地段,入云端之际,独享三里屯静谧之境


    三里屯一号 坐拥京城繁华地段,入云端之际,独享三里屯静谧之境


    线条是简单和复杂的并存,简单在于它只是一根线,复杂在于它在千变万化中产生的各种设计语义,卧室的背景墙在线条的强弱、精细、穿插、排布中形成一种节奏韵律变化,亦是飞驰梦乡的具象体现。

    三里屯一号 坐拥京城繁华地段,入云端之际,独享三里屯静谧之境


    生活品质亦是体现在每个细节中,即便是一张躺椅:皮革包裹着符合人体工程学的流畅,兼具家居的实用与跑车的耀眼。

    三里屯一号 坐拥京城繁华地段,入云端之际,独享三里屯静谧之境


    全部为25层以上景观房,大户型.平层凯丽赫本、香港CCD;复式阿玛尼、芬迪、阿斯顿马丁、BV、范思哲.

    居者之心为居之境,CCD在倡导高品质生活方式的同时,将Aston Martin艺术、理念和精神贯穿其中,将动感的体验做到极致,让设计的美感贯穿于细节。


    关键词:

    人已打赏

    • Do

      0.01

    • Do

      0.80

    • Do

      0.80

    • Do

      0.80

    • 空空当当

      4.00

    • 空空当当

      1.60

    • 空空当当

      1.60

        ×

        打赏支持

        打赏金额
        • 1元
        • 2元
        • 5元
        • 10元
        • 20元
        • 50元

        选择支付方式:

        打赏记录
        ×

        精彩评论文明上网理性发言,请遵守评论服务协议

        共0条评论
        加载更多
        房产的那些事儿

        xxx

        0文章
        0总阅读

        打赏成功!

        感谢您的支持~

        打赏支持 喜欢就打赏支持一下小编吧~

        打赏金额{{ds_num}}
        打赏最多不超过100元,打赏须知

        收银台

        订单总价0.00

        剩余支付时间:000000

        手机扫码支付

        使用支付宝、微信扫码支付

        其他支付方式